방수기능사 자격증 시험 출제기준 및 도면 공개 문제에 대해서 알려드리겠습니다. 시험출제기준 참고 하시고 도움되시기 바랍니다.
방수기능사 시험 일정 및 실기시험 정보에 대한 내용은 클릭하세요
방수기능사 출제기준(실기)
| 직무 분야 |
건 설 | 중직무분야 | 건 축 | 자격 종목 |
방수기능사 | 적용 기간 |
2023.1.1.~2023.12.31. | |||
| ○직무내용 : 건축구조물의 지하층, 지붕, 실내바닥, 벽체에 모르타르, 아스팔트 등의 각종 방수재를 바르거나 도포하는 등을 수행하는 직무이다. ○수행준거 : 1. 각종 방수 공사 작업 준비를 할 수 있다. 2. 시멘트 모르타르 방수, 시트 방수, 도막 방수, 실링 방수 공법으로 시공할 수 있다. 3. 모르타르 바르기 및 보호제 부착을 통해 보호층을 시공할 수 있다. |
||||||||||
| 실기검정방법 | 작업형 | 시험시간 | 5시간 정도 | |||||||
| 실기과목명 | 주요항목 | 세부항목 | 세세항목 |
| 방수작업 | 1. 방수시공 도면파악 |
1. 도면기본지식 파악하기 |
1. 방수시공 도면의 기능과 용도를 파악할 수 있다. 2. 방수시공 도면에서 지시하는 내용을 파악할 수 있다. 3. 방수시공 도면에 표기된 각종 기호의 의미를 파악할 수 있다. |
| 2. 기본도면 파악하기 |
1. 방수시공 도면을 보고 구조물의 배치도, 평면도, 입면도, 단면도, 상세도를 구분할 수 있다. 2. 방수시공 도면을 보고 재료의 종류를 구분하고 가공위치 및 가공방법을 파악할 수 있다. 3. 방수시공 도면을 보고 재료의 종류별로 시공해야할 부분을 파악할 수 있다. |
||
| 3. 현황위치 파악하기 |
1. 방수시공 도면을 보고 현장의 위치를 파악할 수 있다. 2. 방수시공 도면을 보고 현장의 형태를 파악할 수 있다. 3. 방수시공 도면을 보고 구조물의 배치를 파악할 수 있다. 4. 방수시공 도면을 보고 구조물의 형상을 파악할 수 있다. |
||
| 2. 방수시공 현장안전 | 1. 안전보호구 착용하기 |
1. 현장 안전수칙에 따라 안전보호구를 올바르게 사용할 수 있다. 2. 현장 여건과 신체조건에 맞는 보호구를 선택 착용할 수 있다. 3. 방수시공 현장안전을 위하여 안전에 부합하는 작업도구와 장비를 휴대할 수 있다. 4. 방수시공 현장안전을 위하여 작업안전 보호구의 종류별 특징을 파악할 수 있다. |
|
| 2. 안전시설물 설치하기 |
1. 산업안전보건법에서 정한 시설물설치기준을 준수하여 안전시설물을 설치할 수 있다. 2. 안전보호구를 유용하게 사용할 수 있는 필요장치를 설치할 수 있다. 3. 방수시공 현장안전을 위하여 안전시설물 설치계획도를 숙지할 수 있다. 4. 방수시공 현장안전을 위하여 시설물 안전점검 체크리스트를 작성할 수 있다. |
| 실기과목명 | 주요항목 | 세부항목 | 세세항목 |
| 3. 불안전시설물 개선하기 |
1. 방수시공 현장안전을 위하여 기 설치된 시설을 정기 점검을 통해 개선할 수 있다. 2. 측정장비를 사용하여 안전시설물이 제대로 유지되고 있는지를 확인하고 유지되고 있지 않을 시 교체할 수 있다. 3. 방수시공 현장안전을 위하여 불안전한 시설물을 조기 발견 및 조치할 수 있다. 4. 방수시공 현장안전을 위하여 불안전한 행동을 줄일 수 있는 방법을 강구할 수 있다. |
||
| 3. 바탕처리 |
1. 바탕면 검사하기 |
1. 구조체 품질기준에 따라 방수시공 취약부위를 점검할 수 있다. 2. 구조체 품질기준에 따라 방수시공 전 바탕면 하자를 검사할 수 있다. 3. 구조체 품질기준에 따라 콘크리트 이음 부분을 점검할 수 있다. 4. 방수시공 설계도서에 따라 바닥면의 구배를 확인할 수 있다. |
|
| 2. 바탕 청소하기 | 1. 방수시공 작업계획서에 따라 취약부위를 청소할 수 있다. 2. 방수시공 작업계획서에 따라 바탕면 하자를 제거할 수 있다. 3. 방수시공 작업계획서에 따라 작업한 곳을 건조시킬 수 있다. 4. 밀폐된 공간에서는 작업자 안전을 위해 안전장비를 사용할 수 있다. 5. 건설폐기물 관리와 재활용 관련 업무처리지침에 따라 건설폐기물을 처리할 수 있다. |
||
| 3. 취약부위 보강하기 |
1. 시방서에 따라 직각부위는 둥글게 작업할 수 있다. 2. 시방서에 따라 콘크리트면의 평활도 유지를 위해 모르타르를 시공할 수 있다. 3.. 시방서에 따라 방수시공 취약부위를 보강할 수 있다. 4. 시방서에 따라 콘크리트 균열부분을 보수·보강을 위해 균열부위에 에폭시재를 주입할 수 있다. |
||
| 4. 시멘트 액체 방수 |
1. 방수재 배합하기 | 1. 자재 시방서에서 지정한 배합비율의 기준에 따라 모르타르내의 수분이나 모래가 분리되지 않도록 배합할 수 있다. 2. 자재 시방서에 따라 불순물이 포함되지 않도록 혼합할 수 있다. 3. 자재 시방서에 따라 규정된 시간만큼 충분히 비빌 수 있다. |
| 실기과목명 | 주요항목 | 세부항목 | 세세항목 |
| 2. 방수층 바르기 |
1. 1차 방수 바탕면의 건조 상태에 따라 방수층면에 수분을 살포할 수 있다. 2. 자재 시방서에 따라 방수층을 시공할 수 있다. 3. 시방서에 따라 방수층 이어 바르기는 부착력을 위해 표면을 거칠게 작업할 수 있다. 4. 시방서에 따라 방수층의 균열을 보수, 보강할 수 있다 |
||
| 3. 양생하기 |
1. 시방서에 따라 타 공정의 훼손 또는 간섭이 되지 않도록 하기 위하여 동선, 공정관리를 실시할 수 있다. 2. 시방서에 따라 방수재료의 특성과 시공 장소에 따라 양생할 수 있다. 3. 시방서에 따라 저온 시 동결을 방지하도록 보온양생이나 시트로 방수층을 보양할 수 있다. 4. 시방서에 따라 고온 시 습윤양생이나 시트로 방수층을 보양할 수 있다. |
||
| 5. 규산질계 도포 방수 | 1. 방수재 배합하기 |
1. 자재 시방서에 따라 방수재료의 시공 면적당 도포량을 계산할 수 있다. 2. 자재 시방서에 따라 방수재료를 배합할 수 있다. 3. 자재 시방서에 따라 균일하게 방수재료를 교반할 수 있다. |
|
| 2. 방수재 도포하기 |
1. 자재 시방서에 따라 방수시공 장비를 준비할 수 있다. 2. 자재 시방서에 따라 취약부위를 보강 도포할 수 있다. 3. 자재 시방서에 따라 이음부위를 보강 도포할 수 있다. 4. 자재 시방서에 따라 규산질계 방수재를 도포할 수 있다. |
||
| 3. 양생하기 |
1. 시방서에 따라 타 공정의 훼손 또는 간섭이 되지 않도록 하기 위하여 동선, 공정관리를 실시할 수 있다. 2. 시방서에 따라 방수재료의 특성과 시공 장소에 따라 양생할 수 있다. 3. 시방서에 따라 저온 시 동결을 방지하도록 보온양생으로 방수층을 보양할 수 있다. 4. 시방서에 따라 고온 시 습윤양생으로 방수층을 보양할 수 있다. |
||
| 6. 시트 방수 |
1. 프라이머 도포하기 | 1. 자재 시방서에 따라 프라이머 재료를 준비할 수 있다. 2. 시방서에 따라 바탕 함수율을 확인할 수 있다. 3. 자재 시방서에 따라 이물질을 제거할 수 있다. 4. 자재 시방서에 따라 바탕면을 모르타르로 시공할 수 있다. 5. 자재 시방서에 따라 프라이머를 도포할 수 있다. |
| 실기과목명 | 주요항목 | 세부항목 | 세세항목 |
| 2. 시트 붙이기 |
1. 자재 시방서에 따라 방수재료를 선정할 수 있다. 2. 자재 시방서에 따라 방수재료를 시험할 수 있다. 3. 자재 시방서에 따라 시트를 부착할 수 있다. |
||
| 3. 취약부위 보강하기 | 1. 자재 시방서에 따라 취약부위의 면잡기 시공할 수 있다. 2. 자재 시방서에 따라 파라펫 하부는 홈파기 시공 후 아물림할 수 있다. 3. 자재 시방서에 따라 시트를 압착할 수 있다. 4. 자재 시방서에 따라 이음 부분에서 밀려나온 아스팔트는 재손질할 수 있다. |
||
| 7. 도막방수 | 1. 프라이머 도포하기 | 1. 시공 전 시공면의 건조 상태 확인방법에 따라 수분에 의한 부풀음을 방지하기 위해 시공면 건조 상태를 확인할 수 있다. 2. 자재 시방서에 따라 프라이머 재료를 선택할 수 있다. 3. 자재 시방서에 따라 균일하게 바탕면을 모르타르로 시공할 수 있다. 4. 자재 시방서에 따라 도구를 사용하여 프라이머를 균일하게 도포할 수 있다. |
|
| 2. 방수액 혼합하기 | 1. 자재 시방서에 따라 도막방수액 재료를 준비할 수 있다. 2. 자재 시방서에 따라 이액형 재료인 경우 1회 혼합량을 결정할 수 있다. 3. 자재 시방서에 따라 전동 비빔기를 사용하여 방수액을 혼합할 수 있다. |
||
| 3. 보강포 붙이기 | 1. 자재 시방서에 따라 보강포를 재단할 수 있다. 2. 자재 시방서에 따라 콘크리트 이어치기 부위, 균열부위에 절연 처리할 수 있다. 3. 자재 시방서에 따라 취약부위에 보강포를 붙일 수 있다. |
||
| 4. 방수재 도포하기 |
1. 자재 시방서에 따라 품질을 확인하기 위하여 샘플링 시공할 수 있다. 2. 자재 시방서에 따라 주변오염을 방지하기 위해 비닐필름으로 보양할 수 있다 3. 자재 시방서에 따라 도표용 도구를 사용하여 균일하게 도포할 수 있다. 4. 자재 시방서에 따라 방수재 1차 바름 후 하자부위를 보수할 수 있다. 5. 자재 시방서에 따라 방수재 2차 바름을 실시할 수 있다. |
| 실기과목명 | 주요항목 | 세부항목 | 세세항목 |
| 5. 양생하기 | 1. 시방서에 따라 피착면 이외 오염부분을 청소할 수 있다. 2. 시방서에 따라 실링재 온도를 감안하여 양생기간을 확인할 수 있다. 3. 시방서에 따라 실링재의 변형이 되지 않도록 타공정의 간섭을 통제할 수 있다. |
||
| 8. 실링 방수 |
1. 본드 브레이커 작업하기 |
1. 자재 시방서에 따라 줄눈 폭과 깊이를 산정할 수 있다. 2. 시방서에 따라 백업재료를 설치할 수 있다. 3. 시방서에 따라 줄눈 깊이가 규정 값이 되도록 충진할 수 있다. |
|
| 2. 매스킹 테이프 붙이기 |
1. 시방서에 따라 테이프 제거를 위하여 점착액이 남지 않는 제품을 선택할 수 있다. 2. 시방서에 따라 시공면에 매스킹 테이프를 붙일 수 있다. 3. 시방서에 따라 적절한 각도로 매스킹 테이프를 제거할 수 있다. |
||
| 3. 프라이머 도포하기 |
1. 시방서에 따라 프라이머를 선정할 수 있다. 2. 시방서에 따라 피착면의 이물질을 제거할 수 있다. 3. 시방서에 따라 도구를 사용하여 피착면에 프라이머를 균일하게 도포할 수 있다. |
||
| 4. 실링재 충전하기 | 1. 시방서에 따라 실링되는 부위별로 적정한 실링재를 선정할 수 있다. 2. 시방서에 따라 실링재 시공 시 이음면은 경사지게 작업할 수 있다. 3. 시방서에 따라 실링재 이음부위를 톨루엔으로 청소할 수 있다. 4. 시방서에 따라 프라이머 건조시간이 경과한 후 실링재를 충전할 수 있다. 5. 시방서에 따라 실링마감 전용주걱으로 실링재가 피착면에 잘 접착될 수 있도록 눌러 평활하게 마감할 수 있다. |
||
| 5. 양생하기 | 1. 시방서에 따라 피착면 이외 오염부분을 청소할 수 있다. 2. 시방서에 따라 실링재 온도를 감안하여 양생기간을 확인할 수 있다. 3. 시방서에 따라 실링재의 변형이 되지 않도록 타공정의 간섭을 통제할 수 있다. |
||
| 9. 방수 검사 |
1. 외관 검사하기 |
1. 자재 시방서에 따라 검사방법을 확인할 수 있다. 2. 설계도서에 따라 방수시공 상태를 확인할 수 있다. 3. 시방서에 따라 단계별 방수시공 절차를 확인할 수 있다. |
|
| 2. 누수 검사하기 |
1. 시공계획에 따라 누수검사 계획을 수립할 수 있다. 2. 시방서에 따라 우기 시에 누수검사를 실시할 수 있다. 3. 시방서에 따라 살수하여 누수검사를 실시할 수 있다. 4. 시방서에 따라 시공 부위별로 담수하여 누수 검사를 실시할 수 있다. |
| 실기과목명 | 주요항목 | 세부항목 | 세세항목 |
| 3. 검사부위 손보기 |
1. 자재 시방서에 따라 검사부위 손보기 계획을 수립할 수 있다. 2. 자재시방서에 따라 방수재료 특성을 확인할 수 있다. 3. 자재시방서에 따라 손보기 작업을 수행할 수 있다. |
||
| 10. 방수면 보호 |
1. 방수층 끝단 처리하기 |
1. 시방서에 따라 수직부 방수끝단에 외부의 응력이 미치지 않도록 방수턱을 설치할 수 있다. 2. 시방서에 따라 수직부 방수층 끝단이 들뜨지 않도록 홈을 설치할 수 있다. 3. 시방서에 따라 홈에 방수층을 삽입할 수 있다. 4. 시방서에 따라 외력에 대한 영향으로부터 보호하기 위하여 방수층의 끝단을 보강 시공할 수 있다. |
|
| 2. 보호재 작업하기 |
1. 시방서에 따라 보호재를 선정할 수 있다. 2. 시방서에 따라 보호재 시공계획을 수립할 수 있다. 3. 시방서에 따라 보호재를 설치할 수 있다. 4. 시방서에 따라 방수층에 대한 2차 보호를 위하여 수직부 보호벽을 설치할 수 있다. |
||
| 3. 누름 콘크리트 타설하기 |
1. 시방서에 따라 누름콘크리트 타설계획을 수립할 수 있다. 2. 설계도서에 따라 콘크리트 신축과 평창에 대비하여 일정간격으로 신축줄눈의 계획을 수립할 수 있다. 3. 시방서에 따라 방수층을 2차로 보호하기 위하여 누름콘크리트를 타설할 수 있다. 4. 설계도서에 따라 콘크리트 타설시 물의 배수가 원활하도록 경사를 확보할 수 있다. |
||
| 4. 양생하기 |
1. 시방서에 따라 양생계획을 수립할 수 있다. 2. 시방서에 따라 환경조건을 고려하여 습윤양생할 수 있다. 3. 시방서에 따라 환경조건을 고려하여 보온양생할 수 있다. 4. 시방서에 따라 재령과 양생기간을 확보할 수 있다. |
||
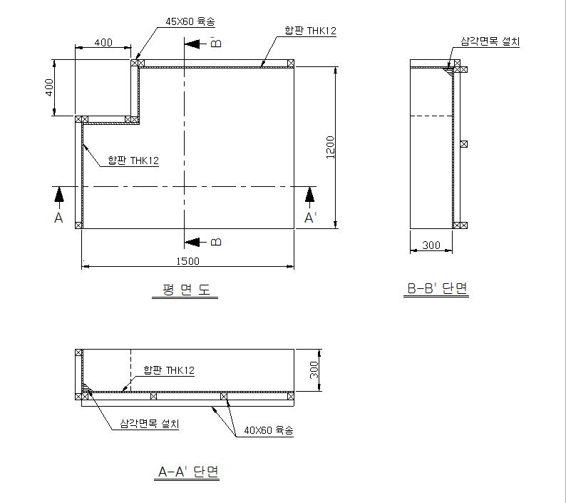
방수기능사 가설물 도면

※ 실제 시험장에 설치되어 있는 가설물의 크기는 일부 상이할 수 있음
※ 시험장에 설치된 가설물은 주어진 가설물 도면의 치수와 다소 차이가 있을 수 있습니다. 시험 시 반드시 실측 후 주어진 가설물 및 파이프 크기에 맞추어 작업하시기 바랍니다.
방수기능사 공개 문제
[공개] 국가기술자격 실기시험문제자 격 종 목 방 수 기 능 사 과 제 명 개량아스팔트시트방수※ 실제 출제되는 시험문제 내용은 공개한 문제에서 일부 변형될 수 있음 ※ 시험시간 : 2시간 10분 1. 요구사항 ※ 주어진 가설물에 아래의 조건에 따라 도면과 같이 개량아스팔트시트 방수작업을 하시오. 가. 주위벽의 방수층 치켜올림은 벽의 상단면 바깥쪽 끝에서 20mm 위치까지 하고(도면 참조) 끝부분은 코킹처리하시오. 나. 바닥과 치켜올림의 이음새(폭 200mm 시트), 모서리(200×200mm 시트), 관통파이프 둘레에는 보강붙임을 하시오. 다. 보강순서는 나온 모서리와 들어간 모서리 보강 붙임 후 바닥과 치켜올림의 이음새 보강붙임작업을 하시오. 라. 나온 모서리 보강 붙임에 사용되는 보강시트는 다음 그림과 같이 재단하여 붙이시오. [하부] [상부] 마. 관통파이프의 최종마무리는 바닥면에서 150mm 높이까지 방수처리하시오. 바. 관통파이프의 내부보강(속치마) 및 외부보강(겉치마)은 바닥면에 50mm 걸쳐 붙이시오. 사. 도면과 같이 구배가 있다고 가정하고 방수작업을 하시오. 아. 파이프는 연속된 것으로 가정하여 시트를 위에서 덮어 씌우지 않도록 하시오. 자. 시트의 접합부 겹침폭은 100mm로 하고, 바닥은 2매, 들어간 모서리 및 나온 모서리는 6매, 관통파이프는 5매를 초과하여 중복해서 포개지지 않도록 하시오. (단, 들어간 모서리 및 나온 모서리에서 보강붙임이 아닌 시트마감의 이음이 있을 경우 1매로 본다.) 차. 도면에 표시된 바닥의 시트방수 마무리 부위는 코킹처리하시오. 카. 보강시트도 개량아스팔트시트를 사용하시오. 5 - 1 [공개] 자 격 종 목 방 수 기 능 사 과 제 명 개량아스팔트시트방수 타. 파이프 둘레 최종 보강붙임에서 바닥부분은 토치로 개량 아스팔트 시트의 뒷면을 균일하게가열하여 시트의 뒷면에 붙은 개량 아스팔트를 용융시켜 붙인 후, 가열한 흙손으로 붙인시트의 가장자리(ㄷ자형)를 눌러 녹여 틈이나 구멍 없이 밀실하게 붙이도록 합니다. [파이프 둘레 최종 보강붙임 바닥부분] 파. 파이프 상단부는 가열한 흙손으로 시트의 상단부 가장자리를 눌러 녹여 틈이나 구멍 없이밀실하게 붙인 후 철선 마감하시오. ※ [타]항과 [파]항 작업 시 흙손 이외의 공구(줄눈 고데 등)나 누름 작업을 위해 흙손을 가공한 것 사용 불가 하. 최종 본시트작업(큰 바닥, 작은 바닥 등) 위에 덧붙임 등 별도의 보강붙임은 하지 않습니다.(파이프 부위 제외) 거. 시험장에 설치된 가설물 및 관통파이프의 크기는 반드시 실측하여 작업하도록 합니다. 너. 큰 바닥 시트와 작은 바닥 시트를 바닥 부분에 붙일 경우, 큰 바닥과 작은 바닥 시트 끝단에서 기둥 삼각면목 하부까지 바탕노출이 30mm 이하가 되도록 하시오. 더. 작은 바닥 시트의 오른쪽 상단은 내밀지 않아도 되며, 내미는 경우 내민 길이가 100mm 이하가 되도록 하시오. ※ 수험자는 다음과 같이 가설물 펠트 작업 후 방수작업을 하도록 합니다. (가설물 펠트 작업에 소요된 시간은 시험시간에서 제외) - 스테이플러 철침을 이용하여 가설물 바닥과 벽면에 아스팔트펠트 부착(상단면까지 씌운다) - 면테이프를 이용하여 관통파이프에 아스팔트펠트 부착 - 면테이프를 이용하여 가설물의 지정된 장소에 관통파이프 고정 - (시험위원) 관통파이프 위치 적정 여부 확인 5 - 2 [공개] 자 격 종 목 방 수 기 능 사 과 제 명 개량아스팔트시트방수 2. 수험자 유의사항 ※ 다음 유의사항을 고려하여 요구사항을 완성하시오. 1) 지급재료에 이상이 있을 경우 시험위원 확인 후 교환할 수 있으나 수험자의 잘못으로 인한 것은 재 지급하지 않습니다. 2) 지참한 공구 이외의 것을 타수험자로부터 빌려 사용할 수 없습니다. 3) 실기시험을 위해 시험문제의 치수, 모양 등 형식에 맞추어 시험시간 시작 전에 제작한 공구 등은 사용할 수 없으며, 사용 시 부정행위 처리됩니다. 4) 가설물 펠트 작업 후 남은 펠트지는 모두 폐기하며, 어떠한 용도라도 시험에 활용할 수 없습니다. 5) 시험 중 안전사고를 방지하기 위해 시험장에 안전화, 안전모를 지참하여야 하며, 일부라도미지참 시 시험에 응시할 수 없습니다. 아울러, 시험장에 안전화, 안전모를 지참하였으나 작업 시 일부라도 착용하지 않았을 경우 감점됩니다. 6) 다음 사항은 실격에 해당하여 채점 대상에서 제외됩니다. 가) 수험자 본인이 수험도중 시험에 대한 포기(기권) 의사를 표시한 경우 나) 지급된 재료 이외의 재료를 사용한 경우 다) 시험 중 시설ㆍ장비의 조작 또는 재료의 취급이 미숙하여 위해를 일으킬 것으로 시험위원 전원이 합의하여 판단한 경우 라) 타수험자의 공구를 빌려 사용한 경우 마) 가설물 펠트 작업 후 남은 펠트지를 시험에 활용한 경우 바) 안전화, 안전모 중 일부라도 미지참한 경우(응시불가) 사) 시험시간 내에 요구사항을 완성하지 못한 경우 아) 시험시간 내에 제출된 작품이라도 다음과 같은 경우 (1) 요구사항의 작업요소 중 누락된 것이 있는 작품 (2) 요구사항 및 도면 내용과 상이한 작품 (벽체 상부 아스팔트펠트지 바탕노출이 없는 경우 포함) (3) 시험문제(도면 포함)의 치수내용에 대해 치수오차 ±30mm 이상일 경우 (단, 벽체 상부 아스팔트펠트지 바탕노출(20mm)은 치수오차 ±20mm 이상일 경우) (4) 방수성능이 없는 것으로 판단되는 작품 ㉮ 큰 바닥 시트의 좌우를 바꿔서 시트 붙임한 경우 ㉯ 큰 바닥과 다른 시트의 겹침부에서 큰 바닥 시트의 접착제 부착 부위를 일부라도 오려 낸 경우(단, 관통파이프 부위 제외) ㉰ 벽에서 바닥까지 붙이는 최종 시트(큰 바닥, 작은 바닥 시트)를 각각 1매로 시공하지 않고 중간에 겹침을 둔 경우 ㉱ 최종 시트 작업(큰 바닥, 작은 바닥 등) 위에 덧붙임 등 별도의 보강붙임을 한 경우 ㉲ 큰 바닥 및 작은 바닥 시트와 기둥 삼각면목 하부의 간격이 30mm를 넘는 경우 ㉳ 작은 바닥 시트의 오른쪽 상단 내민 길이가 100mm를 넘는 경우 ㉴ 최종 마감 시트에서 시트 접착제 부착 부분을 노출하여 시공한 경우 (단, 시트 겹침부에서 겹침폭 부족에 따른 시트 접착제 부착 부분의 노출은 겹침폭 치수 항목 적용) ㉵ 기타 방수성능이 없는 것으로 판단되는 경우 (5) 관통파이프 둘레처리 작업 내용이 요구사항 [타],[파]항과 상이한 경우 (6) 요구사항 [자]항의 겹침 매수를 초과하는 경우 7) 시험문제에 명시되지 않은 사항은 일반적인 시공기준에 따릅니다. 8) 작업 도중에 시험위원이 중간점검 후 영상촬영 등을 할 수 있습니다. 9) 모든 작업이 끝나고 시험위원의 채점이 끝나면 시험위원의 지시에 따라 주변을 정리하도록 합니다. ※ 국가기술자격 시험문제는 저작권법상 보호되는 저작물이고, 저작권자는 한국산업인력공단입니다. 문제의 일부 또는 전부를 무단 복제, 배포, (전자) 출판하는 등 저작권을 침해하는 일체의 행위를 금합니다. ※ <국가기술자격 부정행위 예방 캠페인 : “부정행위, 묵인하면 계속됩니다.” >